Redgrove Place is our proposal to build a pocket neighborhood of rowhouses and mews houses, accessed by a green courtyard and an alley at 711 Grove Avenue.

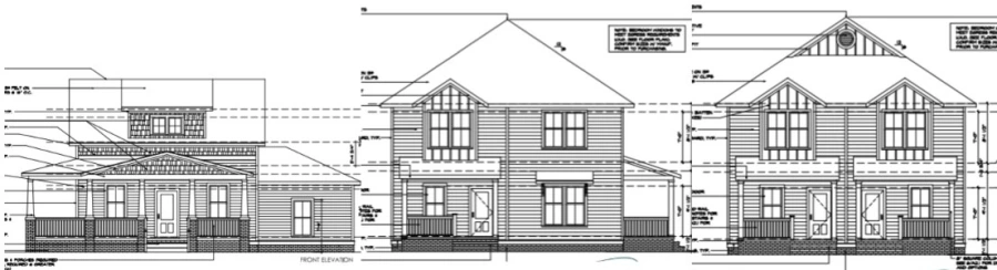
Redgrove Place will echo the existing visual character of Sunset Terrace with small new houses of 1,160 sq. ft. — similar in size to the 1,335 sq. ft. average of our neighbors, unlike the much larger new houses built recently (some over twice as large). We anticipate that all units will be available to moderate- and middle-income prices.
Our site design centers on a landscaped common green for residents’ enjoyment – including two rain gardens that will improve local drainage and reduce pollution to nearby streams. (Few of the new houses recently built in the area have included these features.) A T-shaped alley will ensure adequate emergency access to homes.
Much of Sunset Terrace Extension was originally built with houses behind other houses. Redgrove Place improves on this long-established pattern by adding a common green. The two neighboring townhouse courts (Grove Estates and Ashworth Townes), the front/rear houses on Powell, and the apartments at 720/721 Grove are all examples of how Sunset Terrace has many homes set behind others.
Our approved subdivision plans can be found at the City of Raleigh’s Permit Portal.

Engineering and landscape architecture: The Site Group and Wake Land Design (designer of Cottages at Filmore)
Architect: Tightlines Designs
Construction manager: Haven Build
You must be logged in to post a comment.